Ficheiro
Pressemitteilung-ACO-Showerfloor-Verarbeitung-2016.doc
DOC 271 KB
Vorteile bei der Verarbeitung vom Duschbodensystem ACO ShowerFloor, Pressemitteilung 2016
Ficheiro
Pressemitteilung-ACO-Kellerfenster-Therm-2016.doc
DOC 2 MB
Wasserdichte Kellerplanung mit ACO Therm 3.0 Pressemitteilung
Ficheiro
Technische-Zeichnung-ACO-KerbDrain-305-07961.pdf
PDF 37 KB
Technische Zeichnung ACO KerbDrain 305, Artikel-Nr. 07961
Ficheiro
Technische-Zeichnung-ACO-KerbDrain-480-04926.pdf
PDF 38 KB
Technische Zeichnung ACO KerbDrain 480, Artikel-Nr. 04926
Ficheiro
Technische-Zeichnung-ACO-KerbDrain-480-Revisionselement-04927.pdf
PDF 47 KB
Technische Zeichnung ACO KerbDrain 480 Revisionselement, Artikel-Nr. 04927
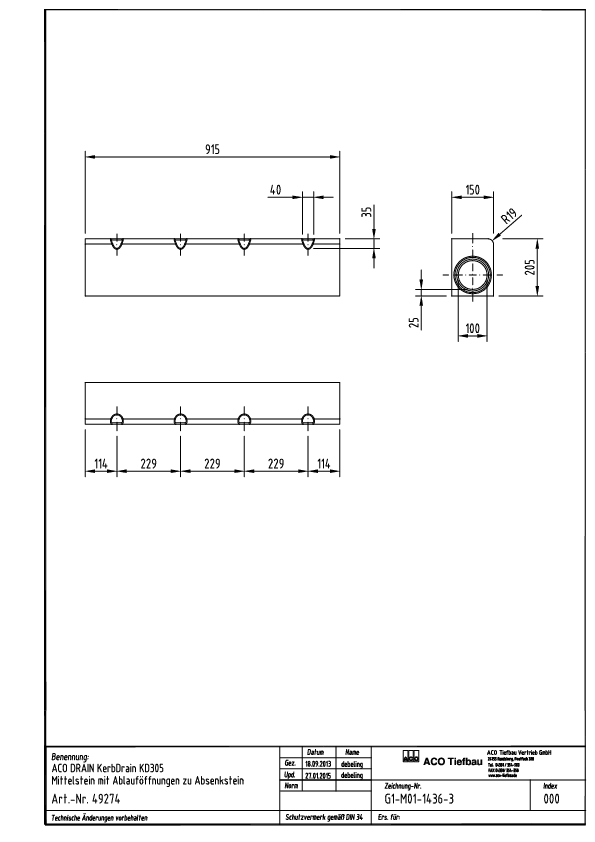
Ficheiro
Technische-Zeichnung-ACO-KerbDrain-305-Mittelstueck-mit-Einlaufoeffnung-49274.pdf
PDF 24 KB
Technische Zeichnung ACO KerbDrain 305 Mittelstück mit Einlauföffnung
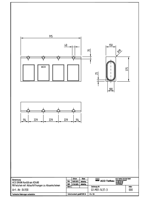
Ficheiro
Technische-Zeichnung-ACO-KerbDrain-480-Mittelstueck-mit-Einlaufoeffnung-04930.pdf
PDF 25 KB
Technische Zeichnung ACO KerbDrain 480 Mittelstück mit Einlauföffnung, Artikel-Nr. 04930
Ficheiro
Technische-Zeichnung-ACO-KerbDrain-305-Revisionselement-07962.pdf
PDF 38 KB
Technische Zeichnung ACO KerbDrain 305 Revisionselement, Artikel-Nr. 07962
Ficheiro
Technische-Zeichnung-ACO-KerbDrain-Absenkstein-links-07966-04931.pdf
PDF 33 KB
Technische Zeichnung ACO KerbDrain Absenkstein links
Ficheiro
Technische-Zeichnung-ACO-KerbDrain-Einlaufkasten-Kurzform-04928-01614-06190.pdf
PDF 39 KB
Technische Zeichnung ACO KerbDrain Einlaufkasten Kurzform







