Ficheiro
Technische-Zeichnung-ACO-Fassadenrinne-Profiline-130mm-Fix-30mm.dwg
DWG 263 KB
Technische Zeichnung ACO Profiline mit fixer Bauhöhe 30 mm für Baubreite 130 mm
Ficheiro
Technische-Zeichnung-ACO-Fassadenrinne-Profiline-130-200mm-Fix-75mm.dwg
DWG 683 KB
Technische Zeichnung ACO Profiline mit fixer Bauhöhe 75 mm für Baubreiten 130 mm und 200 mm
Ficheiro
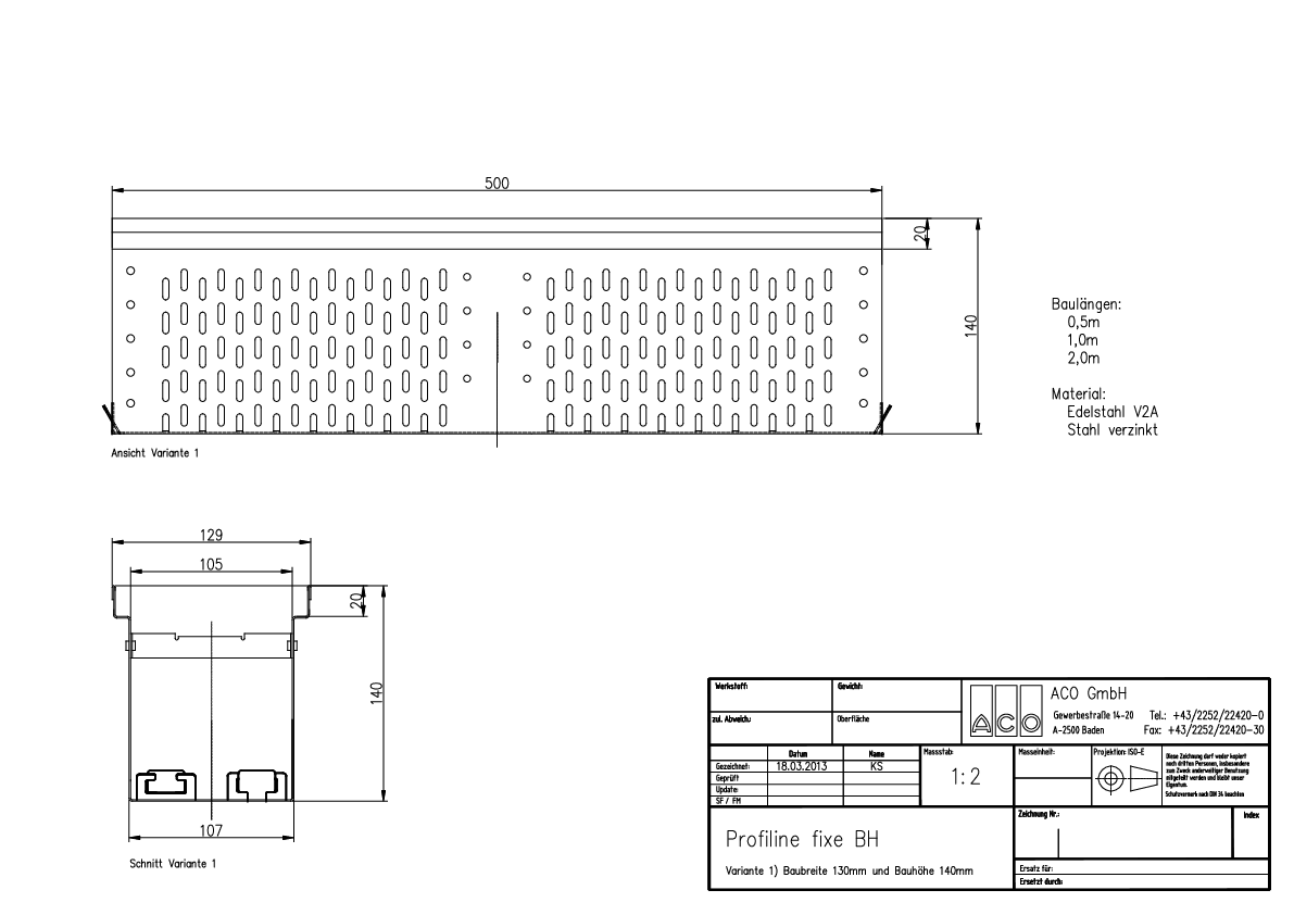
Technische-Zeichnung-ACO-Fassadenrinne-Profiline-130mm-Fix-140mm.dwg
DWG 329 KB
Technische Zeichnung ACO Profiline mit fixer Bauhöhe 140 mm für Baubreite 130 mm
Ficheiro
Technische-Zeichnung-ACO-Fassadenrinne-Profiline-130mm-Fix-140mm.pdf
PDF 82 KB
Technische Zeichnung ACO Profiline mit fixer Bauhöhe 140 mm für Baubreite 130 mm
Ficheiro
Technische-Zeichnung-ACO-Fassadenrinne-Profiline-130mm-Typ-1-2-3-L500-1000.pdf
PDF 145 KB
Technische Zeichnung ACO Profiline höhenverstellbar Baubreite 130 Typ 1 bis 3 Länge 500 bis 1000
Ficheiro
Technische-Zeichnung-ACO-Fassadenrinne-Profiline-130-200-250mm-Fix-50mm.dwg
DWG 2 MB
Technische Zeichnung ACO Profiline mit fixer Bauhöhe 50 mm für alle Baubreiten
Ficheiro
Technische-Zeichnung-ACO-Fassadenrinne-Profiline-200mm-Typ-1-2-3-L500.pdf
PDF 128 KB
Technische Zeichnung ACO Profiline höhenverstellbar Baubreite 200 mm Typ 1 bis 3 Länge 500 mm
Ficheiro
Technische-Zeichnung-ACO-Fassadenrinne-Profiline-200mm-Typ-1-2-3-L1000.pdf
PDF 160 KB
Technische Zeichnung ACO Profiline höhenverstellbar Baubreite 200 mm Typ 1 bis 3 Länge 1000 mm
Ficheiro
Technische-Zeichnung-ACO-Fassadenrinne-Profiline-130mm-Typ-1-2-3-L500-1000.dwg
DWG 1 MB
Technische Zeichnung ACO Profiline höhenverstellbar Baubreite 130 Typ 1 bis 3 Länge 500 bis 1000
Ficheiro
Technische-Zeichnung-ACO-Fassadenrinne-Profiline-200mm-Typ-1-2-3-L500.dwg
DWG 669 KB
Technische Zeichnung ACO Profiline höhenverstellbar Baubreite 200 mm Typ 1 bis 3 Länge 500 mm



