Ficheiro
Einbauanleitung-Kabelschachtabdeckung-Trigona-Aguss.pdf
PDF 1 MB
Einbauanleitung für die ACO Kabelschachtabdeckung Trigona
Ficheiro
Technische-Zeichnung-ACO-Schlitzaufsatz-150-mittig-49975-49976-49981-49982.dwg
DWG 276 KB
Technische Zeichnung zur ACO Slotline 150 Schlitzrinne mit mittigem Schlitz, Länge 500 und 1000 mm
Ficheiro
Technische-Zeichnung-ACO-Schlitzaufsatz-150-mittig-Revisionselement-49977-49983.dwg
DWG 333 KB
Technische Zeichnung zur ACO Slotline 150 Schlitzrinne mit mittigem Schlitz und Revisionsöffnung, Schlitzhöhe 105 mm
Ficheiro
Technische-Zeichnung-ACO-Schlitzaufsatz-150-mittig-Revisionselement-49977-49983.pdf
PDF 93 KB
Technische Zeichnung zur ACO Slotline 150 Schlitzrinne mit mittigem Schlitz und Revisionsöffnung, Schlitzhöhe 105 mm
Ficheiro
Technische-Zeichnung-ACO-Schlitzaufsatz-150-mittig-49975-49976-49981-49982.pdf
PDF 80 KB
Technische Zeichnung zur ACO Slotline 150 Schlitzrinne mit mittigem Schlitz, Länge 500 und 1000 mm
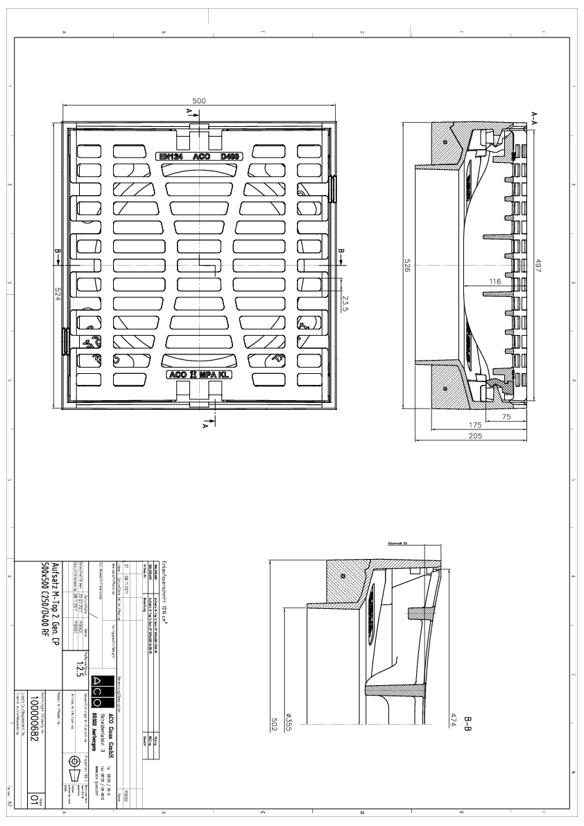
Ficheiro
technische-zeichnung-strassenablaeufe-aufsatz-p-combipoint-pp-500x500-rinnenform-89114-89118_01.pdf
PDF 81 KB
Technische Zeichnung ACO Straßenablauf Combipoint PP Aufsatz P 500 x 500 in Rinnenform
Ficheiro
technische-zeichnung-strassenablaeufe-aufsatz-p-combipoint-pp-500x500-rinnenform-89114-89118.dwg
DWG 1 MB
Technische Zeichnung ACO Straßenablauf Combipoint PP Aufsatz P 500 x 500 in Rinnenform






