Ficheiro
Technische_Zeichnung_ACO_Therm_3.0_Passivhaustauglich_Dreh-Kipp.pdf
PDF 181 KB
Technische Zeichnung ACO Therm 3.0 Leibungskellerfenster passivhaustauglich mit Wärmeschutzverglasung und Dreh-/Kippflügel
Ficheiro
Technische_Zeichnung_ACO_Therm_3.0_Passivhaustauglich_Dreh-Kipp.dxf
DXF 2 MB
Technische Zeichnung ACO Therm 3.0 Leibungskellerfenster passivhaustauglich mit Wärmeschutzverglasung und Dreh-/Kippflügel
Ficheiro
Technische_Zeichnung_ACO_Therm_3.0_Hochwasserdicht_HWD_Dreh-Kipp.pdf
PDF 178 KB
Technische Zeichnung ACO Therm 3.0 Leibungskellerfenster hochwasserdicht mit Dreh-/Kippflügel
Ficheiro
Technische_Zeichnung_ACO_Therm_3.0_Hochwasserdicht_HWD_Dreh-Kipp.dwg
DWG 307 KB
Technische Zeichnung ACO Therm 3.0 Leibungskellerfenster hochwasserdicht mit Dreh-/Kippflügel
Ficheiro
Technische_Zeichnung_ACO_Therm_3.0_Einbruchhemmend_RC2_Dreh_Kipp.pdf
PDF 167 KB
Technische Zeichnung ACO Therm 3.0 Leibungskellerfenster einbruchhemmend (RC 2) mit Dreh-/Kippflügel
Ficheiro
Technische_Zeichnung_ACO_Therm_3.0_Einbruchhemmend_RC2_Dreh_Kipp.dxf
DXF 2 MB
Technische Zeichnung ACO Therm 3.0 Leibungskellerfenster einbruchhemmend (RC 2) mit Dreh-/Kippflügel
Ficheiro
Technische_Zeichnung_ACO_Nebenraumfenster_Standard_Dreh-Kipp.dwg
DWG 200 KB
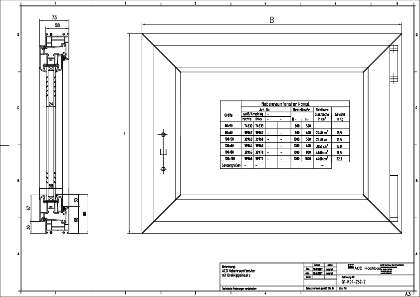
Technische Zeichnung ACO Nebenraumfenster mit Dreh-/Kippbeschlag
Ficheiro
Technische_Zeichnung_ACO_Nebenraumfenster_Standard_Dreh-Kipp.pdf
PDF 89 KB
Technische Zeichnung ACO Nebenraumfenster mit Dreh-/Kippbeschlag
Ficheiro
Technische_Zeichnung_ACO_Nebenraumfenster_Stahlkellerfenster_1-flg.pdf
PDF 53 KB
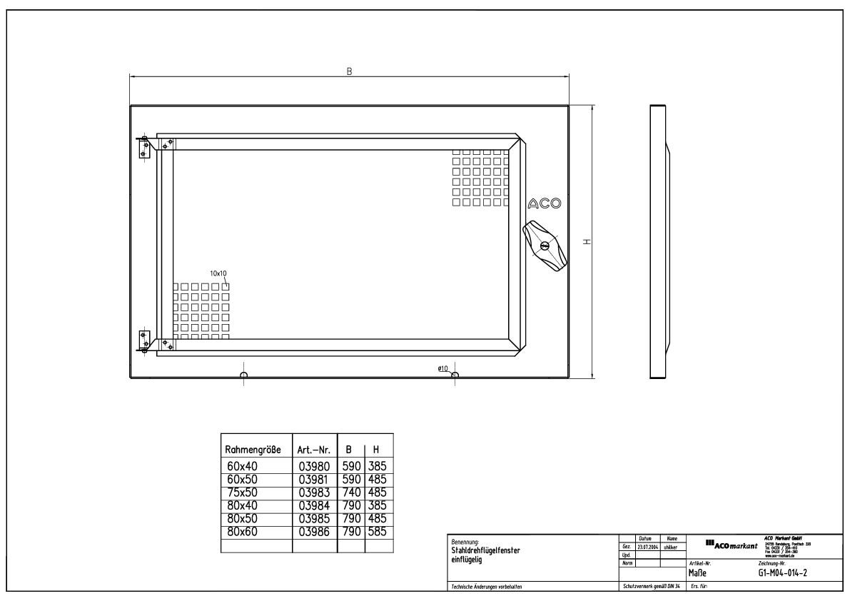
Technische Zeichnung ACO Stahlkellerfenster einflügelig
Ficheiro
Technische_Zeichnung_ACO_Nebenraumfenster_Stahlkellerfenster_2-flg.pdf
PDF 80 KB
Technische Zeichnung ACO Stahlkellerfenster zweiflügelig





